
기흥ICT밸리 SK V1 C동은 용인첨단산업단지 A, B동(2021년 5월 준공)에 이어 두번째로 공급된 지식산업센터입니다.
단지는 기흥역과 신갈역 사이 대로변에 위치하며 대지 2,743㎡ 부지에 지하5층, 지상15층 연면적 21,937.52㎡규모로 공급되었습니다. 용도는 지식산업센터, 근린생활시설로 구성되었습니다.
1차로 공급된 '기흥 ICT 밸리 SK V1 A, B동'은 42,777㎡ 대지에 연면적 197,690.26㎡(59,906.13평) 지하 6층~지상 29층 규모 2개동으로 구성되었으며, 수원 생활권에 속해 있어 편리한 도시 인프라 시설을 모두 누릴 수 있는 첨단산업단지입니다. 2021년 6월부터 입주를 시작하였으며 사업 초기부터 경기남부권 랜드마크 건물로 평가받고 있는 지식산업센터입니다.
■ 사업개요

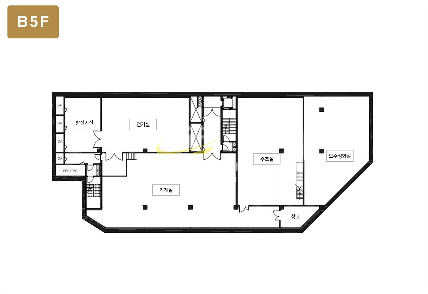
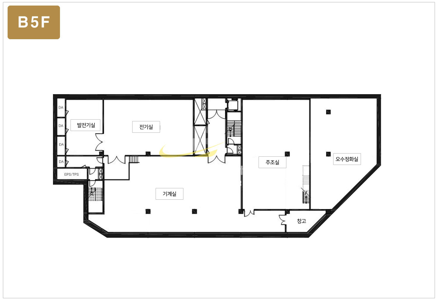
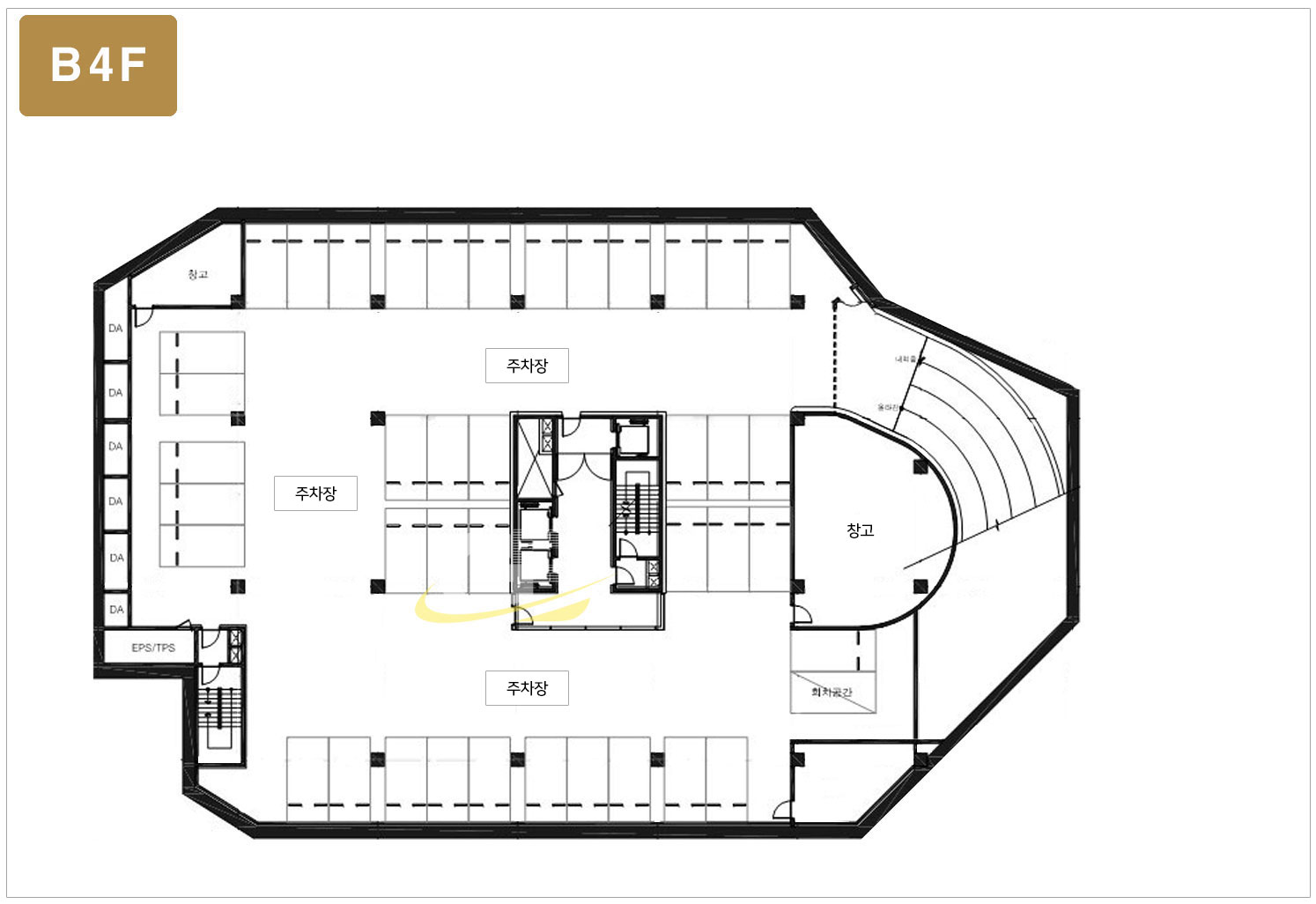
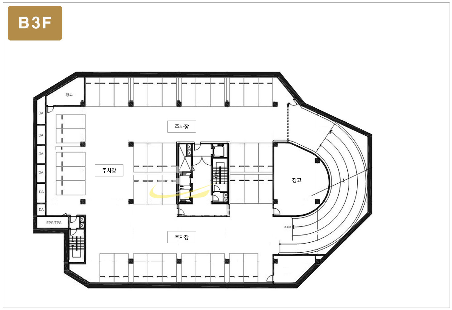
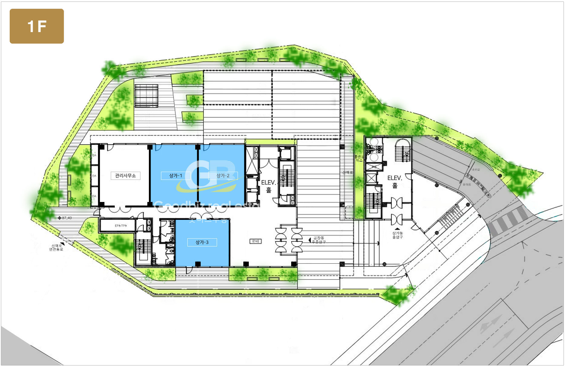
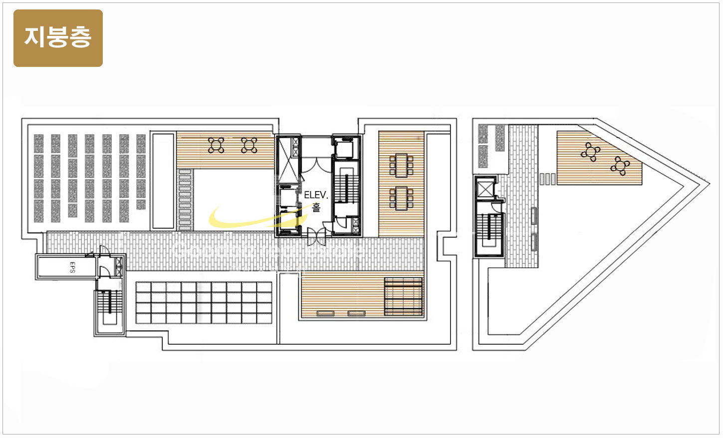
■ 배치도 및 평면도












■ 단면도

■ 중개안내
수원, 광교, 용인 기흥 등 경기 남부권 지식산업센터 매매 및 임대 관련 문의는 저희 부동산으로 연락 주시면 성심성의껏 자세하게 안내드리겠습니다.
○ 문의: Tel) 031-214-4314,
Mobile) 010-4481-1318
○ 중개매물 사이트: http://goodbiz.kr
굿비즈부동산 매물노트
굿비즈부동산 중개매물 안내, 경기남부권(수원/광교/기흥/동탄) 지식산업센터 분양 및 임대 전문, 투자컨설팅 제공, 문의 031-214-4313
goodbiz.kr

반응형
'• 분양 및 공급 단지 안내' 카테고리의 다른 글
| 시그니처광교 지식산업센터 단지 안내 (0) | 2023.01.17 |
|---|---|
| 평촌역 더에이치타워919 지식사업센터 단지 안내 (1) | 2022.12.16 |
| 평촌역 더에이치타워919 지식사업센터 분양 안내 (0) | 2022.12.16 |
| 광교 더퍼스트 지식산업센터 단지 안내 (0) | 2022.11.16 |
| 수원 「영통 현대테라타워」지식산업센터 단지 안내 (0) | 2022.05.02 |